Top-rated HZS Concrete Batching Plant manufacturer

haomei machinery logo

Category

Contact Us

Haomei Aluminium
Tel:+86 0371 65621392
Fax:+86 0371 65621393
E-mail:wade@haomei.biz

Products

Your Position:

HZS50 Concrete Batching Plant

HZS50 Concrete Batching Plant
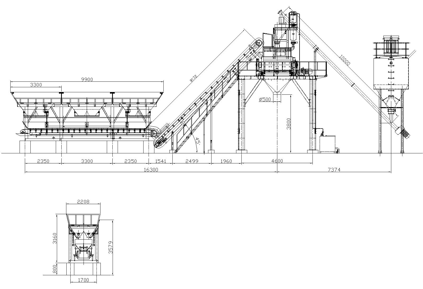
The HZS50 Concrete Batching Plant (50m³/h) is a high-efficiency, compulsory mixing station designed for medium-sized construction projects. It is equipped with the powerful JS1000 twin-shaft mixer, capable of producing plastic, dry-hard, and various other types of concrete with superior uniformity.
This plant utilizes a skip hoist (lifting hopper) feeding system, which significantly reduces the floor space required compared to belt-conveyor plants. It combines the stability of larger HZS series models with the cost-efficiency of smaller units, making it the preferred choice for bridge construction, road works, and precast concrete production.

 HZS50 Concrete Batching Plant

2. Technical Specifications
 
Parameter Specification
Theoretical Productivity 50 m³/h
Main Mixer Model JS1000 (Twin-Shaft Compulsory Mixer)
Mixer Power 37 kW
Discharging Height 3.8m / 4.1m (Adjustable)
Max Aggregate Size ≤ 60mm (Gravel) / ≤ 80mm (Pebble)
Aggregate Bin Quantity 3 or 4 Bins (PLD1600 Series)
Weighing Accuracy Aggregate ±2%; Powder/Water/Admixture ±1%
Total Power ~85 kW (excluding cement silos)
Control System Fully Automatic PLC Control with Report Printing
 

 
3. Applications
The HZS50 plant is versatile and widely used in:
  • Infrastructure Projects: Highway maintenance, small bridges, and rural road paving.
  • Building Construction: Mid-rise residential buildings and commercial foundations.
  • Precast Factories: Production of concrete blocks, pipes, and structural components.
  • Commercial Supply: Small-scale commercial concrete batching for local markets.
 

 
4. Pros & Cons Comparison
 
Advantages (Pros) Disadvantages (Cons)
Compact Footprint: The skip hoist design saves significant space on tight jobsites. Cycle Time: Slightly slower cycle time (60-72s) compared to belt-fed HZS60 plants.
Cost-Effective: Low initial investment and lower maintenance costs than larger stations. Height Restrictions: The lifting hopper track has a fixed limit, making it less ideal for extremely high outputs.
Rapid Installation: Modular structure allows for quick setup and easy relocation.  
High Precision: Advanced weighing sensors ensure concrete quality meets international standards.  
 

HZS50 Concrete Batching Plant
5. Packaging & Shipping
To ensure the equipment arrives in perfect condition at international destinations, we follow strict packaging protocols:
  • Main Mixer & Components: Wrapped in moisture-proof and anti-corrosion film. Critical electrical parts are packed in seaworthy, non-fumigation wooden cases.
  • Steel Framework: Large structural parts are bundled and protected with anti-rust coatings.
  • Container Loading: A standard HZS50 setup typically requires 2 x 40HQ containers.
  • Silo Shipping: For lower freight costs, we recommend bolted-type cement silos which can be disassembled to fit efficiently inside standard containers.
  • Security: All components are secured with steel wire ropes and timber bracing to prevent movement during sea transit.

Tag: Batching Plant   Concrete batching plant   HZS50  

Send A Message

  • *
  • *
  • Captcha

© Haomei machinery 2025 All Rights Reserved. hhttps://www.hzs-concrete-batching-plant.com
Tel:+86 0371 65621392
E-mail:wade@haomei.biz
1107, No.14 Waihuan Road, CBD, Zhengzhou, China